Rain Gutters and the Monolithic Dome
Rain gutters are a problem for every type and style of building. They have they own unique problems in the Monolithic domes. Monolithic domes are round. Rain gutters are generally linear. Monolithic has had to come up with a rain gutter. This one works very well in the southern part of the United States. We think it will work in the northern part but we are not as sure where heavy snow is involved. |
| |
|
 |
 |
The first Monolithic dome with a Monolithic rain gutter is the Saint Joseph Church in Commerce, Texas. The dome is mounted on a integrated concrete block wall. As you can see, as shown, the gutter is attached as a replacement to the steel banding utilized to attach the Airform. |
The down spouts are quite large, they are commercial 2 inch by 4 inch. They are spread around the building per code using a formula produced for that reason. The size of the gutter depends on the size of the dome, the amount of rainfall and the spacing of the downspouts. |
| |
|
 |
 |
Saint Joseph Church is approximately 90' in diameter. The rain gutters are designed to be adequate for most any amount of rainfall. |
The gutter is made in sections of 18 gauge galvanized steel. The down spout connectors are fabricated into a 1 1/2 foot long piece integrated in with the long pieces as the gutter goes around the building. Thus the down spouts can be located anywhere that is necessary and spacing can be adjusted by the length of the straight pieces between them. Shown here is a vertical view of the down spout. |
| |
|
 |
 |
Shown here is a picture of the down spout connector face on. The holes are there to be attached to the concrete ring beam. The down spout connector collects the water from up the dome and directs it into the actual down spout itself. |
This picture is taken from below, you can see that the down spout lip is set out just a little way to make it easy to attach the vertical down spout that goes. |
| |
|
 |
 |
This picture shows the down spout from the back side. The holes are pulled up absolutely tight and against the Monolithic dome and the water level will be flushed with the bottom of this hole in the down spout connector. The gutter is fastened together in such a way that it acts as a single piece throughout the entire perimeter of the dome. |
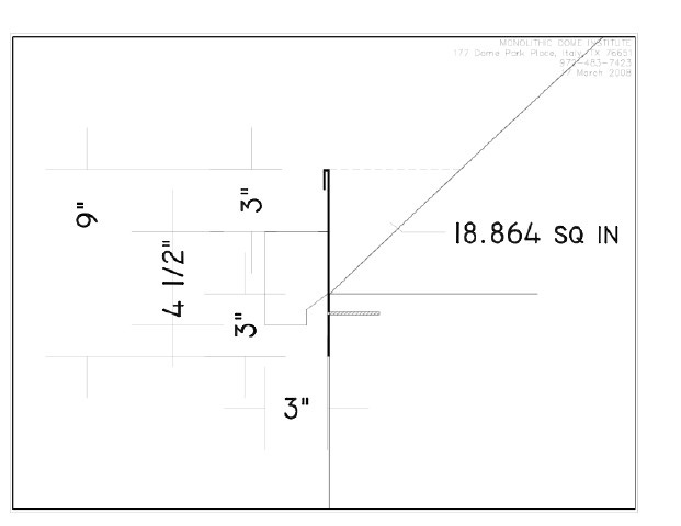
Shown here is a typical wall section of the Monolithic dome with the gutter attached at the top of the concrete ring beam. Note here that one side of the gutter is the vertical metal galvanized band the other side is the Airform itself, therefore the bottom of this “V” has to be caulked very carefully so there is no leakage. This caulking is done using specific caulking designed for this use. This caulking has a much longer life span. |
| |
|
 |
 |
Illustrated here are various sizes of gutters and various angles of roof impingements to the gutter. A steep roof will have a smaller cross sectional area than a flatter roof, so the gutters are adjusted to work with whatever dome shape is built. The chart is used by engineers to calculate how far apart the gutter down spouts are placed. |
Illustrated here is a very accurate description showing the gutter as it is in place against the roof section. |
| |
|
 |
 |
An optional fascia cover can then be placed over the face of the gutter, as illustrated here. This fascia cover is just ornament. It can cover up the galvanized gutter, and add a pleasant finish to the dome/wall intersection. It can stand slightly above the top of the gutter and extend down the wall as far as the client wishes. |
The optional fascia cover can be made of anything designed for outside weather. This illustrated is simple painted steel. It could be made out of aluminum, it could be embossed, it could be anything as fancy or simple as the client wishes. |
| |
|
 |
David B. South
August 29, 2008 |
Shown here are other options for the gutter, a simple straight forward tall piece of metal as well as a standard size gutter. In general it would seem to make more sense to use a standard size gutter and then use an optional fascia cover. |
|
| |
|